top of page



Point Grey House
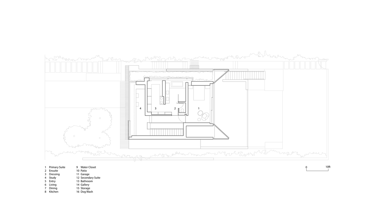
Located on Vancouver’s West Side, this urban house is shaped by topography, views, and zoning constraints. Its rich but restrained interior is contrasted by articulated wood cladding that folds and weaves across the exterior, forming screens, sunshades, and canopies.
Point Grey House

bottom of page















