top of page



Gleneagles Community Centre
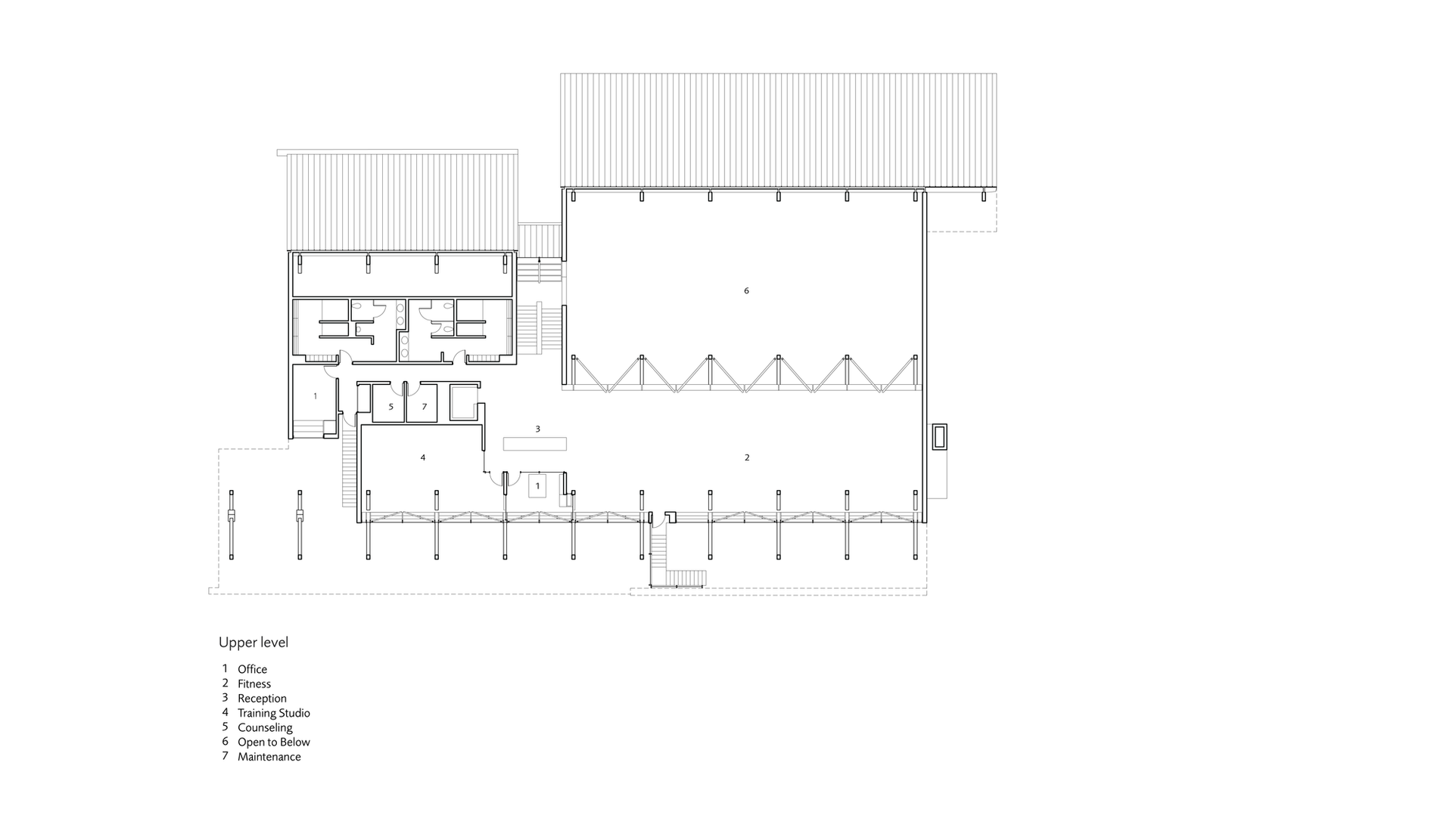
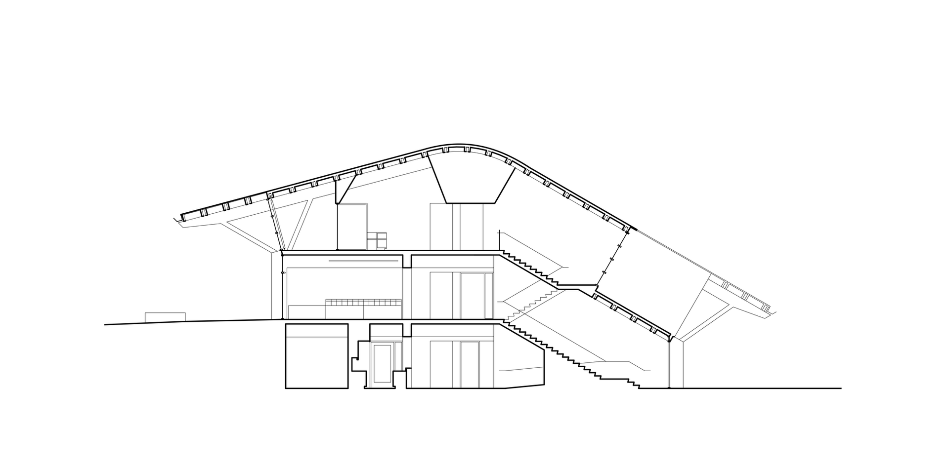
The sectional arrangement of interior spaces activates and energizes the building. The volume of the gymnasium rises through the three levels; walls that separate this volume from adjacent spaces are glazed to facilitate visual connection between the various programs within the building. These simultaneous views of multiple activities animate the interior; the life of the building and the energy of the place are palpable to the community within and without.
Gleneagles Community Centre
bottom of page


















